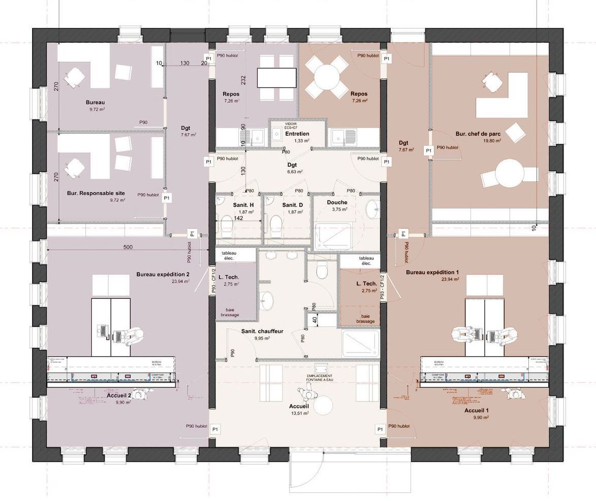
Construction d'un poste d'expédition
Usine Wienerberger │ Achenheim
Le projet consiste en la création d’un poste d’expédition sur le site de l’usine Wienerberger.
La volumétrie simple en briques, et à toiture à deux pans dissymétriques répond au caractère industriel du site.
Les murs de façades sont constituées de briques autoisolante remplie de laine de roche, recouverte d’une brique apparente en terre cuite de teinte sombre. La charpente de bois est recouverte de tuiles à emboîtement à aspect plat de teinte ardoise et des panneaux photovoltaiques sont intégrés dans la toiture côté sud.
Pour aller plus loin
Architecte mandataire
URBANETIC
Bureau d'études
Callisto / Idenova
Lieu
Achenheim / Oberschaeffolsheim
Mission
Base + EXE + OPC
Réalisation
Etudes en cours
Maître d'ouvrage
Wienerberger
Coût des travaux
560 000 €HT
SP
193m²





