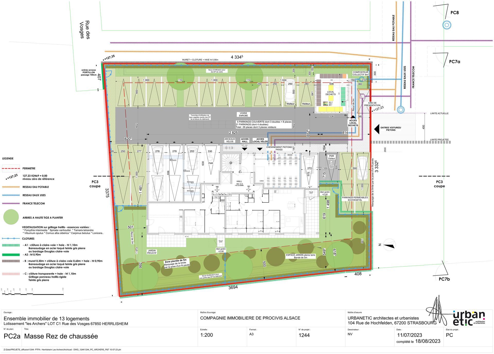
Construction de 13 logements collectifs
Lotissement "Les Archers" - Herrlisheim
Le projet se situe dans le lotissement des Archers en limite sud de la commune de Herrlisheim. Le terrain se situe bordure de la frange Ouest en contact avec le grand paysage.
Le projet est un bâtiment collectif sur 4 niveaux, R+2+ attique. Il comprend 13 logement pour la plupart soit traversants ou à double orientation. De larges balcons et terrasses orientés au Sud ou à l’Ouest prolongent les espaces sur l’extérieur.
Caractéristiques environnementales
Le projet sera conforme à la RE2020.
Pour aller plus loin
Réalisation
Etudes en cours – Livraison 2024
Maître d'ouvrage
AMELOGIS
Coût de l'opération
1,5M€ HT – 1050€ HT/m² SHab
Superficie
SP 945 m²




