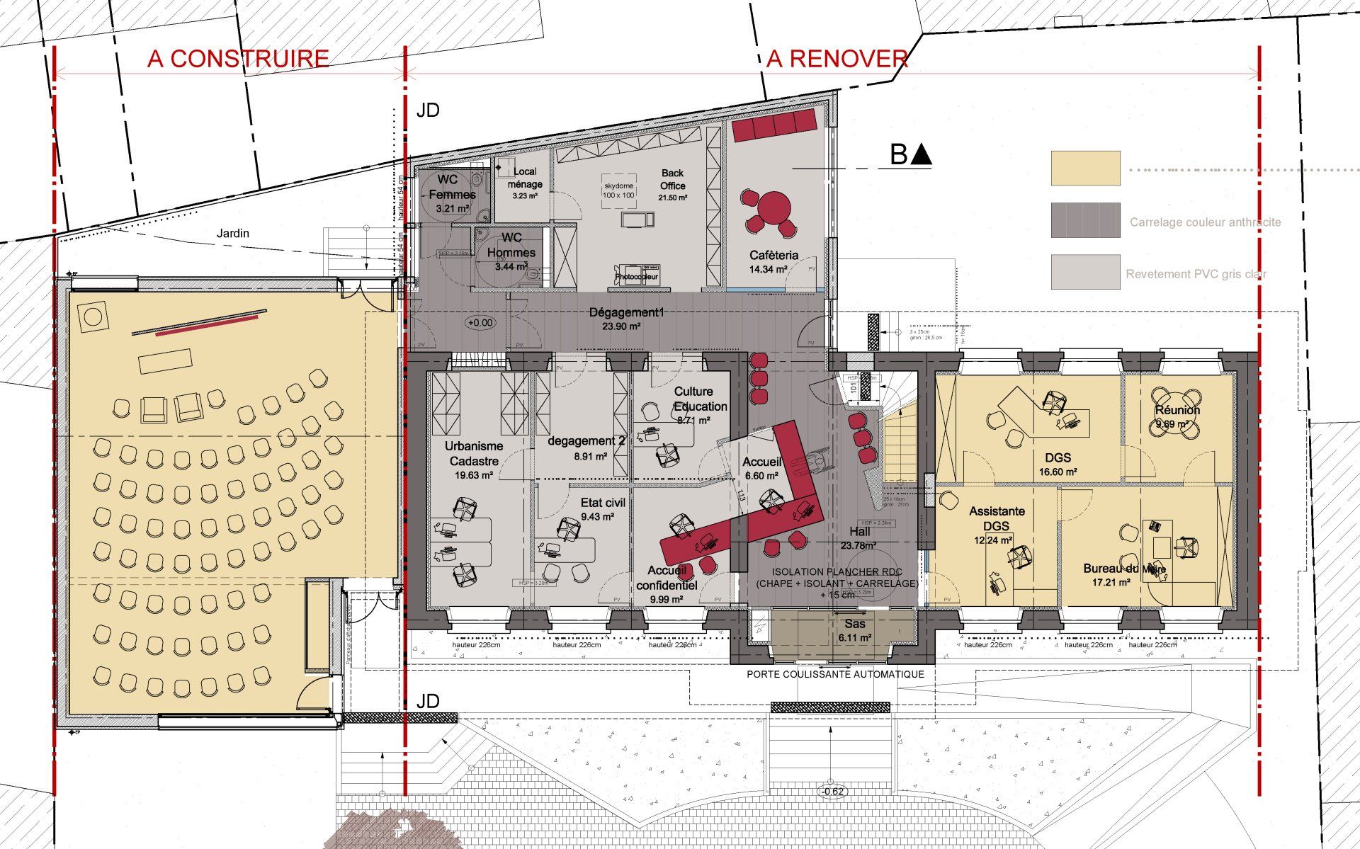
Le terrain est situé en plein cœur du village de Wolfisheim. Le projet a consisté en la rénovation et l’extension de la mairie, bâtiment datant du début du 20eme siècle. Ainsi, le rez-de-chaussée du bâtiment historique a été réaménagé, offrant une redistribution plus fonctionnelle et rationnelle des locaux accueillant le public, ainsi qu’une mise aux normes d’accessibilité. Une extension destinée à accueillir la salle des mariages et du conseil, a été réalisée en partie Nord, à simple RDC. Réalisée en ossature bois, elle est recouverte en façade de panneaux de fibrociment d’aspect minéral.
A l’occasion du projet, les façades de la mairie ont été entièrement refaites. Le volume en avant corps a été modifié : le pignon du volume central en saillie a été retravaillé pour le rendre plus contemporain en supprimant la toiture débordante et en la remplaçant par un cadre en zinguerie qui se déroule et accompagne la parcours d'entrée latérale. Des brise-soleils orientables horizontaux fixes ont été installés au RDC de l’extension et sur l’avant corps central à l’étage. Les tuiles ont été entièrement remplacées par des tuiles de teinte anthracite afin d’affirmer le caractère unitaire et institutionnel du parvis. L’espace public a également été réaménagé.
Caractéristiques techniques et environnementales
La pose de B.S.O motorisés, l’isolation thermique du bâtiment existant et de l’extension ainsi que le remplacement de l’éclairage ont permis une amélioration des performances énergétiques. Niveau RT 2012 pour la partie neuve.
Pour aller plus loin
Architecte mandataire
URBANETIC
Bureau d'études VRD
HN Ingénierie / G.E. RICHERT / ORIEL
Bureau d'études paysage
G.E. RICHERT / ORIEL
Mission
Base + EXE + OPC
Réalisation
2011-2012
Maître d'ouvrage
Commune de WOLFISHEIM
Coût des travaux
586 000 € HT
SP
Existant 282 m² / Extension 125 m²






